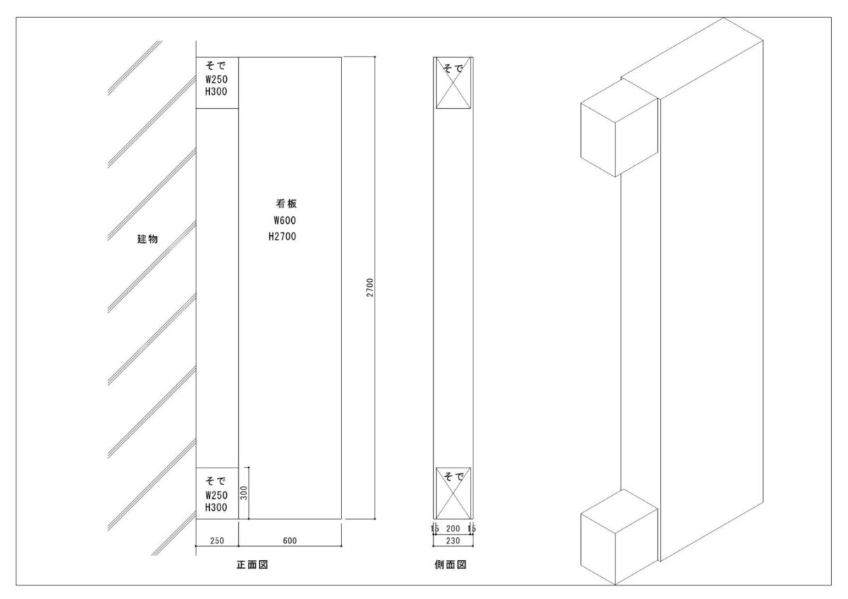
会社看板 2025年 11月 08日 海老沢建築研究所, お知らせ こんにちは! 会社の看板がさびてきたので交換することにしました。 私たちは事務所が建ってからずっと(40年ぐらい??)同じ看板でしたが 結構気に入ってましたので、この雰囲気は残しつつ看板の構造だけ見直すように計画しました。 この看板の大きさが既存の大きさでしたのでこのまま取り付けようと思います。 一番悩んだのが字体です。 字体で印象変わるので一番大切なところです。 現在制作しているので、これから看板がどんな感じで仕上がるか楽しみですね! 興味がある方は是非見に来てください! 海老沢建築研究所 お知らせ 未分類 2026年1月 2025年11月 2025年9月 2025年8月 2025年6月 2025年5月 2025年4月 2025年2月 2025年1月 2024年11月 2024年10月 2024年7月 2024年6月 2024年3月